Avatar
3 months ago • Public • Project • Forwardable
Bookarcho Official Featured
Forest Cube

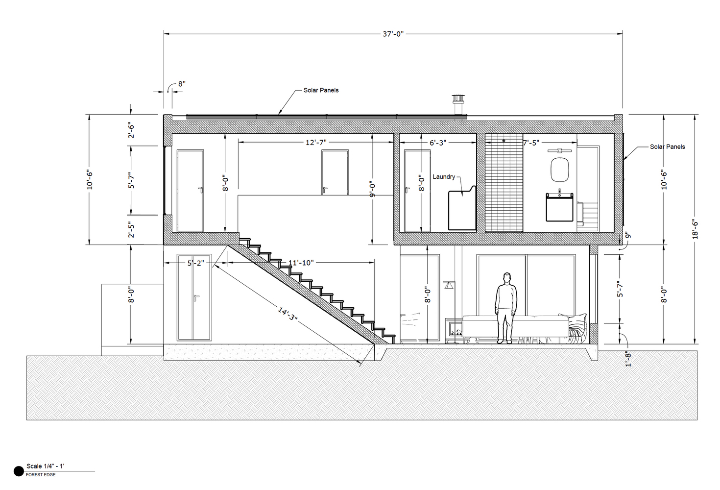
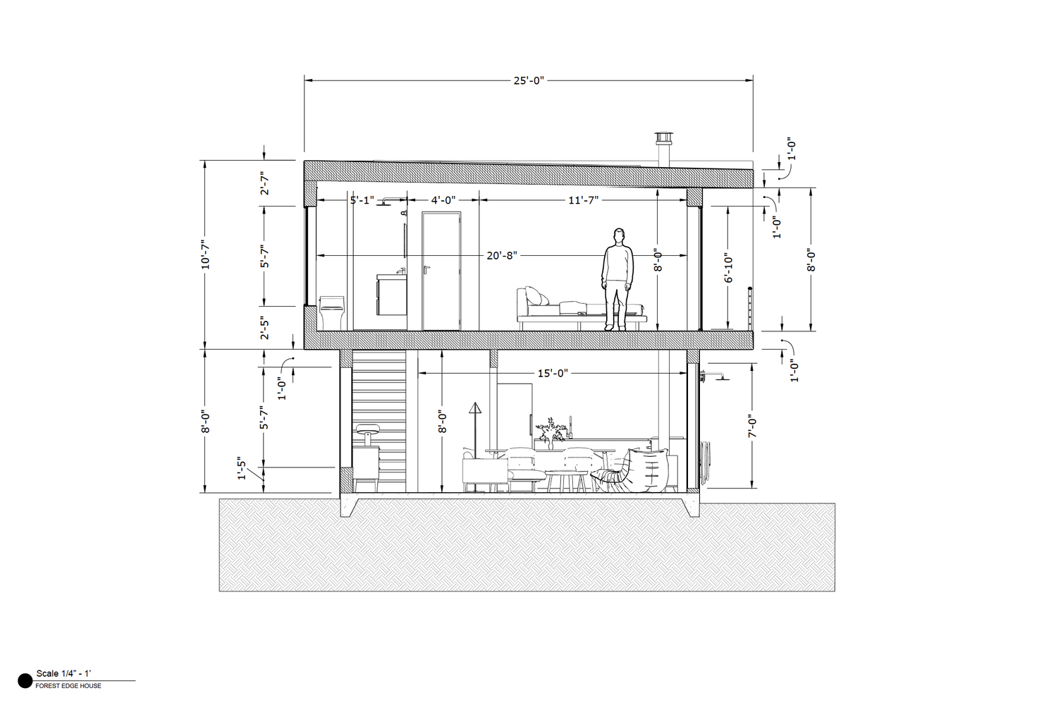
The Forest Edge house is the fifth solar-powered house built by Edifice Upstate in the West Catskills of New York State. The house is designed by award-winning architect and designer Marc Thorpe. The house is a 1500 sqft two-story, 3 bedrooms, 2 full baths, powered completely by solar energy.

Project Details
Architects
MARC THORPE DESIGN
Location
ROSCOE
Category
RESIDENTIAL
Type
CONSTRUCTION
Area
1800
Budget
3340000
Client
SANDRA JOSEPHINE
Photography
TOMCY BENNY
#Minimal #Sustainable #Wood #Metal #
Interior

The architecture is an internalized place defined by the harmony of our existence with nature. In this sense, architecture becomes timeless. The work transcends the physical realm to become part of us, holistic, balanced, and eternal.

Styling and Material usage

This architecture is systemically connected to the environment through ecologically sustainable technology and infrastructure, self-sustaining and independent. Forest Edge is an architecture of responsibility and respect for our environment and ourselves.